Description
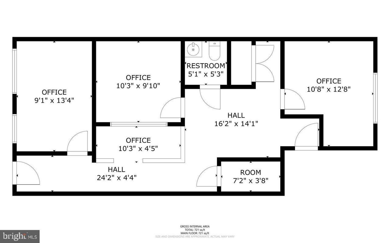
IMPROVEMENTS / LOCATION: Faces Old Georgetown Rd. This unit has direct walk in access from both its front and rear doorways. Also includes 1 parking space. It is divided up into 2 windowed offices, 1 internal office, receptionist desk, large open reception/waiting area, storage, bathroom and HVAC closet. It has its own separate heat pump, electric meter, drop ceiling and carpet flooring. Unit provides easy 24/7 access and control over HVAC at all times. LEGAL & MAILING DESCRIPTION: The legal description of this unit is known as district 07, account 02335424 at 7960 Old Georgetown Rd., Unit 5B in the Old Georgetown Office Park. The mailing address is 7972 Old Georgetown Rd. PARKING: The unit has a parking space either behind the building or in the nearby covered County parking garage across the street. Each year there is a lottery for parking spaces and the condo fee covers the cost of one parking space either in the County facility or behind the building.NOTE: the unit address on the property is 7972 Old Georgetown Rd. My for sale sign is in front of the unit. The legal address is different from the mailing address. The legal address is 7960 Old Georgetown Road, Unit 5B.
Description
IMPROVEMENTS / LOCATION: Faces Old Georgetown Rd. This unit has direct walk in access from both its front and rear doorways. Also includes 1 parking space. It is divided up into 2 windowed offices, 1 internal office, receptionist desk, large open reception/waiting area, storage, bathroom and HVAC closet. It has its own separate heat pump, electric meter, drop ceiling and carpet flooring. Unit provides easy 24/7 access and control over HVAC at all times. LEGAL & MAILING DESCRIPTION: The legal description of this unit is known as district 07, account 02335424 at 7960 Old Georgetown Rd., Unit 5B in the Old Georgetown Office Park. The mailing address is 7972 Old Georgetown Rd. PARKING: The unit has a parking space either behind the building or in the nearby covered County parking garage across the street. Each year there is a lottery for parking spaces and the condo fee covers the cost of one parking space either in the County facility or behind the building.NOTE: the unit address on the property is 7972 Old Georgetown Rd. My for sale sign is in front of the unit. The legal address is different from the mailing address. The legal address is 7960 Old Georgetown Road, Unit 5B.
©2025 Bright MLS, All Rights Reserved. IDX information is provided exclusively for consumers' personal, non-commercial use and may not be used for any purpose other than to identify prospective properties consumers may be interested in purchasing. Some properties which appear for sale may no longer be available because they are for instance, under contract, sold, or are no longer being offered for sale. Information is deemed reliable but is not guaranteed accurate by the MLS or Potomac Prestige | TTR Sotheby's. Some real estate firms do not participate in IDX and their listings do not appear on this website. Some properties listed with participating firms do not appear on this website at the request of the seller. Data last updated: 2025-11-15T07:16:44.663.
